Since Wednesday, Dave and I have been talking about one house… the 1,150 square foot, .27 acre ranch in Berkeley Heights. We both really liked the house when we toured. It was small. Too small for more than just two people. Yet there was something about it… maybe the living room with the huge windows…
Or beautiful yard…
or (for me) the kitchen, albeit a little small….
And we both really liked the front
But, it was still small. We started drawing up the current floor plan and discussing what possible additions we could do.
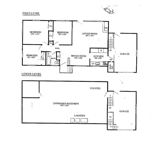
This was our sketch, thanks to Google Sketchup. We then thought adding a master bedroom off the current master and making one of the bedrooms an office leading out to the living room may be the best way to go! Here was our proposed:
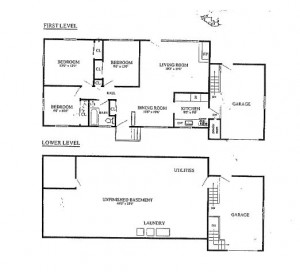
We then talked to Maria who called the township to inquire about getting approval, comparables, and the floor plan/survey from the owners. Here is a look at the actual floor plan:
I’m excited! I found myself doodling sketches of the floor plan when bored in work meetings. 🙂 Hopefully we’ll be able to bring our parents to go see the house in the next week or so. Luckily, it’s about 50k below our maximum price… maybe we can get it a little lower. At least it will leave some extra funds for the extension.







I think this was the best house we’ve seen so far!! It’s so much fun seeing your “finds!”